There will be a joint Community Meeting with the Riviera Homeowners Association and the Seaside Neighborhood Association on Wednesday, February 5th at Richardson Middle School, from 7-9pm.
Speakers/topics will include:
- The March 3rd ballot measures, including the tax ballot Measure X specifically
- Torrance Community Development will go over the revised ADU (additional dwelling unit) laws
- A presentation on the US Census
- New voting rules, locations (and a voting booth demo, if possible)
- A post-mortem on SB 50 and possible future developments
- Update on the local Butcher-Solana project status and the Legado construction timetable.
Candidates Forum
Beginning in 2020, Torrance City Council elections will transition from at-large voting to district-based voting.
The City consists of six districts and only voters residing in the district will decide who represents that district.
While the Hollywood Riviera, in district 5, will not be voting for a candidate until 2022, all future City Council members will continue to guide policy and make decisions for the good of the entire community. It is in all of our best interest to know who the candidates are, even if we’re unable to cast a vote!
Thursday, February 13, 2020 7:00 PM – 9:00 PM:
Torrance Cultural Arts Center – Garden Rooms – 3330 Civic Center Dr., Torrance 90503
(Max Capacity 40 – will be taped and posted on several outlets)
Tuesday, February 18, 2020 6:30 PM – 8:30 PM:
George Nakano Theatre – 3330 Civic Center Dr., Torrance 90503
Sponsored by Torrance League of Women Voters
In addition to the Candidates’ Forums, you can also do research about the local candidates running for office AND THE 4 TORRANCE BALLOT MEASURES at: www.TorranceVotes.org.
Note that these ballot measures will be discussed during the Feb. 5th community meeting at Richardson Middle School, at 7pm.
Memorial Services for Former
Mayor Ken Miller
Service arrangements are being provided by the family …
Thursday, February 6, 2020
11:30 a.m. Memorial Service
Green Hills Memorial Chapel
27501 S Western Avenue
Rancho Palos Verdes, CA 90275
(Please allow time for construction delays on Western Avenue.)
1:30 p.m. Celebration of Life Reception
Ken Miller Recreation Center
3341 Torrance Blvd, Torrance, CA 90503
Both events are open to the public.
Ken Miller is remembered as ushering in an era of good governance in the City of Torrance & was an ardent advocate for the acquisition and preservation of open space. He served as City Council member from 1962-1970 and Mayor from 1970 to 1978. During his tenure as Mayor, the City’s parkland grew from less than 100 acres to around 300 acres: Columbia, Wilson, Delthorne, Sunnyglen, and De Portola Parks are part of his legacy and he promoted the Sister City program w/the City of Kashiwa, Japan in 1973.
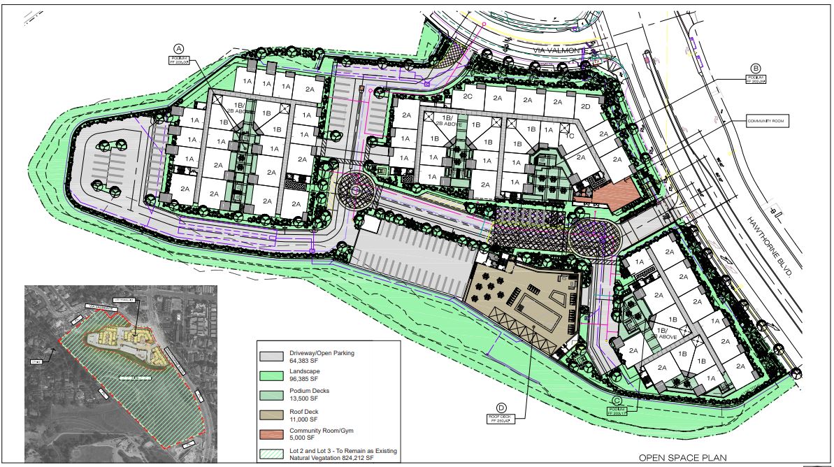
Legado remake gets underway
Here is a letter recently sent to nearby homeowners describing the Legado project demolistion and construction, which was set to begin Wednesday, Jan 29th:

Please note the phone numbers if you have any concerns regarding the ongoing construction work. The Legado Redondo complex will have 115 units and ground-floor retail at the corner of Pacific Coast Highway and Palos Verdes Boulevard. The developer also agreed to refurbish a hotel on the property, the former Palos Verdes Inn.
Butcher-Solana update for Feb 5th meeting.
Per Torrance city staff:
“In mid-December, the applicant [ReyLenn Properties] responded to staff’s request for an update to let us know that the project is still on hold. At this time, the project and its EIR remain on hold.“
In response to our question of whether there’s any deadline, etc that they’ll have to adhere to: “As the application for the project is still considered to be incomplete, there are no additional time limits that we are aware of.”
This update is current as of January 22nd, per Torrance Community Development office. More information may be forthcoming at the upcoming February 5 community meeting.
Nov 6 General meeting recap
Our November 6 General Meeting at Richardson Middle School featured Torrance city officials Patrick Sullivan, City Attorney and Rebecca Poirier, City Clerk who spoke on the issue of voting – in general and specifically for City Council members. As we learned this year, the city has moved toward District-based council districts. The Hollywood Riviera, being in District 5, will be able to vote next for our City Council member in 2022. They also reviewed new expanded voting opportunities coming available next year, such as voting-day registration and no-party-preference registration. Visit the California Secretary of State’s website for more information.

We also received a lot of good information from Leo Oorts of the Torrance Community Development department regarding Short-term rentals and new regulations allowing more leeway in building and renting “additional dwelling units” (ADUs).

The RHA forum provided a great opportunity to interact with city officials, which we plan to provide in the future, as we have in recent years. We also replenished our coffers with memberships gratefully accepted from our members. If you would like to find out your membership status, and donate your voluntary annual dues, please visit our membership page.

Trash talk
The City of Torrance has a new telephone number 855-354-5623 for ILLEGAL DUMPING (you’ll frequently see abandoned furniture at the start or end of each month, when renters move in/out). Call the city at that number for safety and a cleaner neighborhood.

You can also contact the city for a pickup for your own large item discards. Click here for more information. Help keep the Hollywood Riviera beautiful.
Happy New Year to all Hollywood Riviera
residents from your
Riviera Homeowners Association!
Filed under: Uncategorized | Comments Off on Upcoming opportunities to address important issues with an impact on our communities






